MONASTERIO  CISTERCIENSE  DE SANTA  MARÍA  DEL  VALLE  EN  FUENCALIENTE  DEL BURGO   Y  ARANDA  DE  DUERO.

Queremos agradecer a Marcos Esteban Cabrerizo el importante trabajo realizado estudiando y analizando la larguísima historia del monasterio cisterciense de Santa María del Valle de Fuencaliente del Burgo y de Aranda de Duero. 

El convento de Las monjas Bernardas, como popularmente se le conocía en nuestros pueblos, influyó en la vida de los vecinos desde su fundación a mediados del siglo XII hasta su traslado a su nueva residencia en Aranda que tuvo lugar a finales del siglo XVI. Podría decirse, por más añadidura, que su memoria ha permanecido presente hasta nuestros días. 

Las personas siguen hablando de ellas, los lugares donde se ubicó el monasterio continúan teniendo nomenclaturas que les recuerdan, y algunos restos urbanísticos se han preservado a través del tiempo y han llegado hasta nosotros.

Estas son algunas de las razones por las que valoramos especialmente el trabajo realizado por nuestro amigo y paisano Marcos Esteban, que ha sabido acercar al lector la dilatada vida del convento, y conseguir darles carta de naturaleza trayéndoles desde su pasado remoto y situarlas en la actualidad del siglo XXI, cuando nos informa de su último traslado al convento de Santo Domingo de la Calzada, donde siguen profesando en nuestros días.  

Muchas gracias, Marcos, por tu autorización para que podamos publicar tu estudio en nuestra web, permitiendo que los interesados en el saber accedan a una información difícil de conseguir de otro modo.  

Que sea este año en que celebramos el centenario de la compra de nuestros cuatro pueblos a su último propietario, también el de la recuperación de la memoria histórica del monasterio cisterciense de Santa María del Valle de Fuencaliente, que se encuentra en los orígenes de nuestra consolidación y fortalecimiento territorial como unidad política en la Historia de España. 

Eutiquio


Esta información está entresacada del libro  “Apuntes para una Historia de Aranda”, según textos refundidos de J. G.  Abad Zapatero , Coordinados por  Rufino Criado Mambrilla, escritos de  Francisco Palacios y  J.V.Frías  Balsa, al cumplirse el  VIII centenario de la fundación del monasterio de Santa María del Valle en Fuencaliente del Burgo  y el IV de su traslado  a Aranda de Duero.

 Está basada como primera fuente  en el archivo de la MM. Bernardas de Aranda de Duero, hoy en Santo Domingo de la Calzada, que guarda una serie de notas tomadas del monasterio de las Huelgas y de Simancas.

 La fundación del monasterio de religiosas de la orden del Cister, Santa María del Valle en Fuencaliente, tuvo lugar en el año 1175, siendo D. Nuño Pérez, tercer Señor de Fuentearmegil. 

Su fundadora y primera abadesa fue D. Urraca de Avellaneda, hija de los Duques de Miranda y Condes de Peñaranda, casada  con Martín López (1124-1170), Señor de Vizcaya, la cual,  una vez que hubo enviudado,  tomó los hábitos religiosos y profesó como monja cisterciense.  

 Doña Urraca, mandó edificar el monasterio  haciendo uso de las rentas y donaciones obtenidas tras el fallecimiento de su esposo, lo gobernó como abadesa durante muchos años, al menos hasta los 35 años de su profesión, con lo que se puede hablar de hasta 1211.

Entre los bienes con que se fundó la abadía, contaba con las fincas  situadas en el término municipal de Fuentearmegil, llamadas “El monte Carrascal” y “La Dehesa de la Laguna Hermosa” (actualmente denominada “La Gulinosa”), que abarcaban, junto con otras propiedades, los pueblos de Fuentearmegil, Fuencaliente, Rivalva, Santervás y Zayuelas.

En esta  época, siglos XI  y XII fueron muchas las fundaciones que se hicieron bajo la protección de reyes, nobles y señores. En concreto fueron de fundación real  los monasterios de  San Pedro de Arlanza y Santo  Domingo de Silos y las Huelgas en Burgos. Los nobles,  por su parte,  ayudaron a fundar más de 30 monasterios en esta zona del Duero.

Los monasterios se construyeron en lugares muy especiales,  uno de estos fue Fuencaliente, lugar escogido por ser un lugar apartado, recogido y tranquilo, con agua abundante  de  diversos manantiales y  poseer un rico valle, lugar en el que se asentaba el monasterio, regado  por el  río Perales, cuyo nacimiento está junto a una ermita muy próxima en el mismo Fuencaliente.

Este  monasterio y sus tierras  era un señorío de abadengo,  junto con las aldeas contiguas de  Fuentearmegil, Ribalba, Santervás, Zayuelas y parte de Zayas de Torre

El porte  del monasterio  era  de calidad y digna para la época, así lo atestiguan los restos que quedaron, parte de la iglesia románica del monasterio, es cementerio del pueblo;  los restos de varios edificios, las tapias de la huerta y huertos,  todo ello hoy,  prácticamente destruido y abandonado,  dan testimonio de lo que fue.  Sin lugar a dudas muchas de sus  piedras  estarán formando parte de casas del pueblo.

La iglesia monacal era de estilo románico, con una capilla lateral a la altura del  ábside,  dedicada a Santa Cecilia, con su pila bautismal, motivo canónico por el que  el cura de Fuentearmegil, a cuya jurisdicción parroquial pertenecía Fuencaliente, reclamara ante la Audiencia Episcopal de Osma una parte proporcional a los diezmos del lugar. 

Los familiares de Doña Urraca  y otros nobles, tanto en vida de ella como después , beneficiaron al monasterio con numerosas  donaciones, diversos  bienes y aportaciones, que junto con las dotes de las señoras monjas que ingresaron al monasterio, no sólo en  el municipio de Fuentearmegil, sino en  otros pueblos y lugares  distantes formaron los bienes del monasterio.

 En el año 1211, se habla de no pequeñas donaciones hechas al monasterio por los hijos de Doña Urraca y consanguíneos  en atención a la abadesa Urraca, así la llamaban.

Las donaciones, fundaciones y transmisiones de  bienes  que realizaban los nobles a monasterios y obispados, no eran gratuitas y desinteresadas, esto conllevaba una serie de obligaciones,  como  orar por el donante en vida y por la salvación de su alma después de la muerte, celebrar un determinado número de misas después de  su muerte, ser enterrado en las iglesias de los monasterios.  Las donaciones mostraban su posición de nobleza y señorío, eran dote para sus hijos eclesiásticos o religiosos, al mismo tiempo que mostraba su adhesión a la iglesia  y al estamento eclesiástico.

En la iglesia  del monasterio recibieron sepultura , según Pellicer, D. Lope Martínez, hijo de Doña Urraca, vasallo de Avellaneda, que realizó donaciones en el año 1191, importante hombre que,  en 1212, participó activamente en la batalla de las Navas de Tolosa  y  en la conquista Baeza en 1227.  

También figuran como  enterrados  en el monasterio personajes ilustres, como, Doña  Elvira González de Aza, esposa de D .Lope Martínez, su hija de Doña Leonor González de Girón,  su esposo D. Gonzalo Gómez de Roa, Señor del Gran estado de Aza, el nieto de Doña Urraca, Don Diego López de Avellaneda, que sirvió al rey Fernando el  Santo en las guerras de Andalucía y conquista de Sevilla, murió en 1280 siendo enterrado en Fuencaliente al igual que  su esposa Doña Toda, su hijo López Díaz de Avellaneda, que sirvió  hasta su muerte a  los reyes D. Sancho IV y a D. Alfonso XI el Sabio,  su esposa Doña  Aldónza Díez de Fuentearmegil; todos ellos fueron enterrados en el monasterio de Fuencaliente;  . A todos estos nobles,  hay que añadir los restos de las abadesas y monjas.

Los restos  de todos estos personajes, sepultados en la iglesia,  fueron trasladados al nuevo convento de las Bernardas  de Aranda de Duero, junto con imágenes, útiles religiosos, libros, reliquias  y otros enseres comunitarios que pudieron transportar. 

 Los nombres de sus títulos, como  Avellaneda, Miranda, Peñaranda, Aza, Roa,  sus relaciones al servicio de diferentes reyes,  participación en batallas y diferentes hechos relevantes, nos da idea de la clase de protectores  del monasterio y de los lugares donde  pudo tener el monasterio  las donaciones y propiedades,  así como de la importancia que pudo tener el monasterio de Santa María del Valle en esta época . 

Como hemos dicho,  en estos siglos,  se produjeron muchas fundaciones de monasterios.  El rey  Alfonso VIII  quiso agrupar los monasterios más pequeños, haciendo  que dependieran de uno  mayor , así ocurrió con los de  Torquemada, Gradefes, Carrizo, Perales, San Andrés de Arroyo y Cañas,  que pasaron a depender del  de  Las Huelgas de Burgos, fundado en 1187 por el mismo rey Alfonso VIII de Castilla y su esposa Leonor de Plantagenet, constituyéndose como cabeza y matriz de todos los conventos femeninos cistercienses de Castilla y León. 

 Santa María del Valle  de Fuencaliente pasó a depender del de las Huelgas de Burgos en 1189.

 Hay una serie de datos que figuran en diferentes documentos que relataré, dándonos una idea de diferentes hechos y momentos del Monasterio.

En septiembre de 1187, el abad de Santa María de Huerta y obispo de Sigüenza, acude al capítulo general del Cister  con cartas de las abadesas  del reino de Castilla y del Rey Alfonso VIII, solicitando que, el monasterio de las Huelgas fuese convertido en cabeza y matriz  de todos estos conventos cistercienses de monjas. 

En las actas de este primer Capítulo, fechadas en 27 de abril de 1189, consta que acudió a él la abadesa de Fuencaliente, la misma Doña Urraca ; en las actas de este Capítulo se explica  cómo deben,  las abadesas  de los monasterios filiales,  prestar obediencia a la de las Huelgas, según consta  en el archivo de las madres Bernardas de  Aranda.

Estos monasterios, que habían sido fundados antes que el de las Huelgas , mostraron su  oposición a su integración: no aceptaban como cabeza rectora un monasterio recién fundado, considerando que todos debían prestar obediencia, como filiales que eran, al Monasterio de Santa María de la Caridad de Tulebras, en (Navarra), primera abadía de monjas Bernardas españolas, fundado en 1157.

Con los diversos patronazgos,  donaciones, dotes  y permutas, además de los bienes y rentas de la misma  Doña Urraca,  fueron propiedad del   monasterio de Santa María del Valle posesiones de tierras en diferentes pueblos, unos próximos y otros más lejanos. 

En el año 1208, en un documento,  se da cuenta de que -López Martínez- hijo de doña Urraca, hace diversas donaciones de fincas y tierras al monasterio.

En 1271 la abadesa  Doña María Antolínez,  realiza un cambio de tierras con el moro Farach y su esposa Missol.

El monasterio de Fuencaliente contó con la abadía filial de Santa Tosia, en Arauzo de Torre, desde el 16 de agosto de 1250  según la documentación de Caleruega.

Los momentos de esplendor del monasterio, se vieron eclipsados con el tiempo  por sus escasos recursos económicos y pocas rentas producidas,  llegando a pasar pobreza, necesidades  y estrecheces,  hasta tal punto que en 1394, el Cardenal Guillermo, legado Pontificio en España, anexionó al convento las rentas del Monasterio de Santa Tosia (Santa Teodosia),  situado próximo a Santo Domingo de la Calzada, así como a sus monjas, que eran tres o cuatro, pero esta agregación no solucionó el problema económico.

En 1394, la Abadesa Doña Aldonza , ve aumentada su congregación en 3 o cuatro  monjas , que son trasladadas desde el Priorato de Santa Tosía a causa de hallarse reducido a excesiva pobreza por las continuas irrupciones violentas de gentes armadas.

         En 1437 la Abadesa Dª. María González de Avellaneda se vio obligada a vender en la “Merindad de Can de Nuño”  la finca de “Asturianos”, con objeto de obtener fondos para resolver la penosa situación por la que atravesaban;  se vendió a Pedro de Cartagena, con todos sus términos,  derechos y vasallos,  en 4300 maravedíes , más 35.000 maravedíes en dinero efectivo. Se vendió por sus escasas rentas,  lejanía del monasterio y por la necesidad de reparar muchos de los edificios que estaban en un estado ruinoso.

Otro elemento perturbador para los monasterios fue el estado de  tensión y lucha que había por la zona  de  los monasterios existentes  con diversos  señores que trataban de  ocupar tierras pertenecientes a los monasterios según se recoge en diversos documentos. .  En un documento fechado en Letrán en 1233 y enviado al Obispo de Osma, le  ordena  que proteja a las religiosas de las molestias de hombres depravados.

López Raez, en” la descripción histórica del Obispado de Osma”, da cuenta de que Juan García, hijo natural de Juan García Villamayor, Señor  de la Villa de Ucero y su castillo, a finales del siglo XIII, se levantó contra su padre, causando saqueos y desmanes en varios conventos de la zona. 

Llegada la hora de la muerte  y considerando los sacrilegios, robos y daños que había hecho en los Monasterios de Santo Domingo de Silos, San Pedro de Arlanza, San Pedro de Gumiel, Santa María de la Vid, las abadías de  Santa María de Fuencaliente, Brazacorta, Fresnillo, Santa Tosia  y al convento de monjas de Caleruega, quiso satisfacerlos a costa de su hacienda, mandó por su testamento que vendiesen la villa de Ucero y los pueblos de su jurisdicción, y que con su importe , averiguados los daños, se hiciesen a todos puntual reparación. 

La compra la hizo el Obispo  de Osma, Don Juan de Ascarón en el año de 1302. 

En 1352, los dominios del monasterio de Santa María de Fuencaliente se extendían por Fuentearmegil, Fuencaliente, Ribalba, Santervás, Zayas de Santa María (Zayuelas), Rabanera del PinarCoruña del Conde y Zayas de la Torre, por la  localidad de Asturianos, cercana a la ciudad de Burgos, “que era abadengo de la abadesa de Fuencaliente”. 

 Como vasallos pagaban un  maravedí  anual por infursión,  mas veinte dineros por otros conceptos.

En  1366, la abadesa Doña Isabel Sánchez de Leiva  hereda de su padre el señorío de Quemada, propiedad que vendió por 80.000 maravedíes al concejo de Aranda.

En el libro becerro, hablamos de 1350,   dice: «Este logar de Fuente Almexir e Fuente Caliente e Ribalba e sant Ervas e  Zayas de Santa María que eran aldeas del dicho logar de Fuente Almexir, e son solariegos del monasterio de Santa María de Fuente Caliente e de fijos de Ioham Martínez de Leiva e de fijos de Ochoa Martínez de Avellaneda e de Gonzalo Yañez  de Amaya e todos son un conceio e pechan una cabeza». Pagan al rey -añade el libro Becerro- monedas y servicios los derechos del Señor .

Y más adelante, refiriéndose a Fuente Caliente, añade: «este logar es del monasterio de Fuente Caliente e el dicho monasterio nin los sus vasallos non pagan yantar ni martiniega. 

Según el Becerro, reinando en  Castilla Pedro I el Cruel (1350-1369)-, todas estas aldeas son solariegas dependientes del  monasterio de Fuente Caliente. Y bajo la benefactoría de los hijos de tres familias.

Por el libro de las Behetrías de Castilla, se sabe que el monasterio de Fuencaliente, lo mismo que sus vasallos, estaban exentos de pagar tributos  regios. No así los pueblos situados en el valle que eran aldeas del lugar de Fuentearmegil  y son solariegos  del Monasterio  y de los hijos de Ruy Martínez de Avellaneda y de Gonzalo Yañes de Amaya,  son un concejo, pagando al rey monedas y servicios.

En los siglos XI  y  XII, los monasterios y los vasallos dedicados al monasterio estaban exentos de los tributos regios, no así el resto de habitantes del lugar a quienes se cargaban estos tributos. Las rentas se pagarían al monasterio  en especies (Cereales y/o cabezas de ganado).  Las cargas reales  eran simbólicas y de poca monta, una cabeza de ganado, bovino seguramente.

En el año de 1402, a sólo cuatro Kilómetros, se fundó  por el Cardenal  Don Pedro Fernández de Frías, Obispo de Osma, el monasterio de los Jerónimos, dotado con las posesiones que tenía en Peñaranda  y  las aldeas de Orillares, Guijosa, La Hinojosa  y Espeja.  La influencia de este monasterio se extendió por siglo y medio.

El 31 de octubre de 1480, los Reyes Católicos, comisionan a un eclesiástico de la Catedral de Osma para que ante una denuncia de la abadesa contra el cura de Fuentearmegil,  Don Benito Sánchez ,que reclamaba la posesión de la Capilla de Santa Cecilia y lamentaba que la Abadesa le impidiera celebrar los oficios divinos, que él opinaba estaba  bajo su jurisdicción, perjudicando a su parroquia en la obtención de las limosnas, privándoles a sus feligreses de recibir los sacramentos y prohibiéndole recibir diezmos, ofrendas y otros beneficios.  En cuanto a los diezmos y ofrendas, si bien era cierto que había vecinos de Fuencaliente adscritos a la parroquia de Fuentearmegil,  no obstante,  se mandaba enterrar “por devoción” en el monasterio, por lo que las monjas recibían las ofrendas y limosnas que dejaban en sus testamentos. El relato del cura, concluye el Procurador, no era por tanto cierto.

El 18 de febrero de 1489, los Reyes Católicos, comisionan  a Fernán Pérez de Segovia, ante la petición del monasterio, quejándose de  que  Juan de Avellaneda  amenazaba con gente armada a los aldeanos  que trabajaban las propiedades del monasterio, solicitando los beneficios de estos lugares para él, alegando que él era su señor,  por ser estas tierras a su parecer suyas y  prohibiéndoles entregar sus prestaciones al monasterio.

Se ve que no todos los pertenecientes a la familia Avellaneda  estaban de acuerdo con las donaciones que se habían hecho al monasterio.

Muerto Juan de Avellaneda, sus descendientes siguieron con las amenazas, por lo que la abadesa volvió a recurrir en 1493.

En el año 1490 se da orden de prisión contra el escribano D. Juan Zuazo, por quebrantar la clausura, aunque no se sabe cuál fue el motivo para ello.

El 3 de Junio de 1489, la abadesa del monasterio de Gradefe, que estaba recluída en el monasterio de Fuencaliente por orden del Obispo de Segovia, fue sacada por sus partidarios con la pretensión de que ocupara las rentas de su antigua abadía. 

 A lo largo de estos siglos, los monasterios, por su situación en descampado, son blancos fáciles para las gentes  malvadas  y hombres de guerra que todo lo asolan, cometiendo tropelías y desmanes.

 Como se puede observar por los datos que constan, en esta época, se sucedieron una serie de hechos que agitaron la vida del monasterio distrayendo la vida de oración, recogimiento y clausura  conventual.

Los monasterios de las filiaciones habían admitido un mayor número de monjas de las que podían sostener, produciéndose necesidades,  perjuicios, daños, penurias y  hambre, por lo que  se vieron obligadas, no sólo a consumir sus dotes, sino a vender diversas posesiones, con el objeto de obtener fondos para resolver la penosa situación por la que atravesaban.

La Abadesa de las Huelgas, Doña Teresa de Ayala, de la que dependía el monasterio de Santa María del Valle de Fuencaliente, trato de ayudar con los bienes de su monasterio a las necesidades de sus Comunidades filiales, pero sus recursos resultaban  insuficientes.

Pocos años después, 1543, se produjo un pleito entre las monjas del monasterio y el Concejo de Fuentearmegil, el cual terminó por sentencia dictada por la Real Chancillería de Valladolid, declarando su principal cuestión a favor de los vecinos de Fuentearmegil, otorgándoles  28 de mayo de 1565, la roturación del prado de los “Caballos” y el de “Guadaña”.

La situación económica se hace tan grave que llega a planteársela  al mismo Papa.  El Papa León X en 1517, prohíbe a la Abadesa de las Huelgas, bajo pena de excomunión, que admitan más monjas en los monasterios que de ella dependían, hasta que el número de religiosas  se redujese a las que él indicaba para cada monasterio. En concreto,  para el de Fuencaliente, fijó el límite de doce monjas profesas y dos hermanas conversas. 

En 1615 la Abadesa de las Huelgas, doña Ana de Austria, levanta la limitación que existía en cuanto al número de monjas

El hecho más grave sucede en 1550,  un pavoroso incendio redujo a ruinas el Monasterio y su iglesia. Dice el cronista,”sin casi quedar cosa donde un pájaro pudiera cubrirse”.  Ante semejante desastre , la Abadesa doña María Sarmiento se dirige al Obispo Pedro de Acosta de Osma pidiendo su amparo, quien  envía un donativo de 3.000 ducados para la reconstrucción, otorgando adicionalmente una renta de 200 ducados anuales mientras él viva, obligándose las monjas  a decir dos misas cada año por su eterno descanso  y poner su escudo en la fachada del monasterio. La abadesa se llamó como agradecimiento María Acosta Sarmiento.

Mientras reedificaban parte del monasterio, comenzaron preparando  con carácter de urgencia unas habitaciones y una capilla.  Para la reedificación colaboraron los patronos y descendientes de los Avellaneda y muy especialmente Obispo  de Osma, Pedro de Acosta.

La imagen de la Virgen que se quemó en el incendio. Los Avellanedas donaron otra una nueva imagen de Ntra. Sra. De Valle, que  es la que se llevaron a Aranda y actualmente continúa. 

El Concilio de Trento, celebrado entre 1545 y 1563, ante el acoso y vicisitudes  que padecen estas comunidades de religiosas, dispone que los monasterios de monjas que viviendo en comunidad, tiene sus monasterios en descampado, pasen a vivir en  poblado, incorporándose a las villas y ciudades.  

En junio de 1583, al ser nombrado Obispo de Osma don Sebastián Pérez, decide el  traslado y así se lo hace saber a la Abadesa de las Huelgas. En capítulo convocado el 6 de febrero de 1584 por la Abadesa de las Huelgas, doña Leonor de Castilla, se decide el traslado definitivo a la Villa de Aranda en un plazo de tres años y que siga estando bajo la filiación de las Huelgas;  así se ejecutó en 1585.

Durante 30 años,  los sucesores del Obispo Acosta en el obispado de Osma,  trataron de que se cumpliera lo mandado en el Concilio de  Trento  de que se unieran los monasterios pequeños que se encontraban en lugares despoblados y se trasladasen a zonas más pobladas,  incluso se celebró un Concilio Toledano en 1565. Este  proceso fue lento, ya que a las monjas se resistían a dejar sus antiguos monasterios en los que habían vivido durante siglos con toda la historia que había detrás. 

En esta época, el obispo de Burgo de Osma quería crear una  universidad 

con facultades de Artes, Cánones, Medicina y Teología; siendo autorizada el 5 de agosto de 1550 por bula canónica del papa Julio III, y dedicada a Santa Catalina de Alejandría. Felipe II mediante Real Cédula del 31 de enero de 1562 la tomó bajo su protección y amparo. De esta manera adquirió la doble condición de Pontificia y Real Universidad.​

Se disputaban el  lugar para construcción,  Soria, Burgo de Osma y Aranda de Duero.  Por aquel entonces, Aranda pertenecía a la diócesis de Burgo de Osma y siguió perteneciendo hasta 1956.

 Soria no respondió. Finalmente el  Obispo decidió  crear  el  Colegio- Universidad de Santa Catalina en El Burgo de Osma, lugar de residencia del obispado, así fue fundado en 1550 por  el obispo portugués Pedro Álvarez de Acosta. Es un hermoso edificio de corte renacentista con una portada plateresca que a lo largo de la historia ha tenido diversos usos, como universidad, cárcel, instituto; en la actualidad se ha  convertido en un establecimiento hotelero de calidad que incluye una zona termal de 1.500 metros cuadrados en dos plantas sótano y 62 habitaciones.8​

 Esto fue  motivo de disputa, la decisión del Obispo causó malestar,  sentó muy mal al Concejo d Aranda. Para dar satisfacción  se decidió que en  Aranda de Duero se construyera el convento Espíritu Santo de los dominicos. Reunidos en Osma con el Obispo consiguieron el compromiso del obispado  de fundar también un convento de religiosas de la misma orden. Esto no se cumplió y en lugar en el que se iba a construir el convento se decidió construir un hospital para pobres y necesitados, en  el lugar en el que actualmente se encuentra  la iglesia de Santo Domingo y el hospital de los Santos Reyes.  

 Este obispo de origen portugués, con diversos patrocinios,  también impulsó la construcción de la capilla principal de San Nicolás de Bari en Sinovas, el convento de las Bernardas  en su antiguo emplazamiento, donde actualmente se sitúa la Plaza del  7 de Agosto, posteriormente Plaza de la Constitución, la capilla principal de la Virgen de las Viñas, así como el Hospital de los Santos Reyes y el convento del Sancti Espíritu, lugar que eligió para su sepultura.

Tras 411 años de permanencia en el monasterio de Santa María del Valle de Fuencaliente, Las pocas monjas que quedaban,  apenadas y tristes,  recogen sus escasas  pertenencias  y  cargando con los huesos de su fundadora y benefactores  que habían sido enterrados en el monasterio , a lomos de animales y con una caravana de carros  se ponen en camino hacia Aranda,  que dista de Fuencaliente  unos 50 Km. 

En Aranda de Duero  han permanecido  hasta el año  2001 en que se dejaron la Villa para unirse con la comunidad de monjas cistercienses de  en el monasterio riojano de Santo Domingo de Calzada. 

El nombre oficial del monasterio  en Aranda siguió siendo  Santa María del Valle, excepto  un breve período como veremos más adelante, transcurrido el cual,  volvió a recuperar su nombre original, si bien en el pueblo  siempre se le conoció  como el convento de las Bernardas.

Cuenta el historiador Fernando Sánchez que en aquel entonces “Aranda era una ciudad muy rica y destacada de Castilla,  una Aranda con buena ubicación en la que destacaba por su comercio y desarrollo del sector primario. Tendría entre 5.000 y 6.000 habitantes, similar a los que tenía Burgos, pero Aranda en el aspecto comercial, agrícola y ganadero,  no tenía nada que envidiar a la capital. 

Las familias Avellaneda, Zúñiga, Acuña, Ortiz de Zárate, Sandoval y Rojas son algunas de las importantes familias de la Villa.

Seguro que para las monjas, el estar en el centro de la población  en donde se desarrollaba la vida, supondría un fuerte  contraste con relación a la paz, tranquilidad y soledad de la que gozaban en el valle de Fuencaliente. 

Tras su traslado, el desenvolvimiento de la vida diaria y de los acontecimientos que se fueron desarrollando a través de los años, están  más documentados, sin duda,  con el incendio,  se perdió gran parte de los valiosos escritos y documentación que pudiera existir en el monasterio de Fuencaliente. 

Si bien la vida de las madres Bernardas,  en el tiempo que estuvieron en Aranda, especialmente en los 200 últimos años, como se verá,  no  tuvieron menos sobresaltos de los que pudieron padecer  y sufrir en su monasterio de Fuencaliente. 

Pasarán nueve años desde la llegada a Aranda hasta que se inician las obras del nuevo monasterio.

 Durante estos años las monjas se alojan en las casas de sus protectores, don Bernardino González de Avellaneda, primer conde de Castrillo, mientras se tramitan los permisos pertinentes ante el Obispado, las Huelgas, el Concejo de Aranda y el Consejo Real, este último era necesario al estar vigente, como regla general, la prohibición de construir monasterios dentro de los recintos amurallados, dada la limitación de terreno y las grandes superficies que necesitaban estos recintos religiosos. 

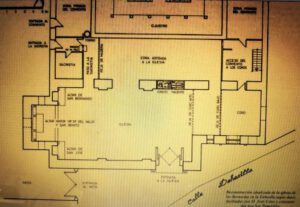
La situación del  nuevo Monasterio comprendía lo que actualmente es la Plaza de la Constitución y los edificios adyacentes. 

Primeramente se levanta el convento, dotándolo de una capilla provisional, y posteriormente la iglesia. Se empezó a construir en el año 1596.

Cuando se inaugura no estaba construída la iglesia, solamente una capilla en la que se coloca a imagen de Ntra.  Sra. Del Valle y se celebra el culto. 

El 23 de Julio de 1615, La Abadesa de las Huelgas, doña Ana de Austria, firma y manda unas definiciones para los monasterios de su filiación sobre admisión de candidatas, profesión, regla, ropas, elecciones, administración, levantándose  la limitación que existía en cuanto al número de monjas en los monasterios. 

De las posiblemente catorce monjas que llegaron a Aranda desde Fuencaliente, se cuenta que había veintinueve en el momento de la inauguración, el 26 de Abril de 1666, siendo Abadesa Doña María Luisa de Espinosa y Pedrosa.

 En el catastro de Ensenada de 1752 se señala que el monasterio de la Nuestra Señora del Valle, se compone de 18 profesas de velo negro, sin que en ese momento hubiera legas ni novicias

Merece ser destacado como elemento clave en el traslado y construcción del  monasterio en Aranda de Duero,  la protección y patronazgo ejercido por don Bernardino González de Avellaneda ( 1544-1629), primer Conde de Castrillo de Don Juan, nacido en Aranda de Duero. Fue un marino, político, mecenas y bibliófilo español, al servicio de los reyes Felipe II, Felipe III y Felipe IV. Recibió el mayorazgo de señor de las villas de Valverde, Alcoba de la Torre, Alcubilla de Avellaneda y Santa María del Mercadillo y de su tío heredó también los señoríos de Castrillo de Don Juan y Cevico Navero (villas de la comarca del Cerrato).

Su cuerpo fue enterrado en el  Monasterio de San Jerónimo de Espeja, pues era patrono de la capilla mayor de la iglesia conventual..

 A su muerte, en 1618, sucederá en el patronazgo su nieta  doña María González de Avellaneda, casada con don García Avellaneda y Haro, segundo Conde de Castrillo. Ejercerán el patronazgo de las Bernardas y del Colegio de la Vera Cruz de forma conjunta.

Los protectores en distintas fechas hacen aportaciones al monasterio de Santa María del Valle en Aranda.:

El 5 de abril de 1639 el Conde de Castrillo, ordena que se gaste en vestir 6 pobres  20.000 maravedís el Jueves Santo de cada año y admitan  cuatro monjas en el convento, dándose a dicho convento cada año  150.000 maravedíes. Esto era cien ducados por cada monja en concepto de dote.

El 20 de junio de 1639, hizo una escritura por la que se comprometía a invertir 1500 ducados  en beneficio del monasterio. 

El 16 de mayo de 1665, 1500 ducados para edificar la Capilla Mayor del convento. En la misma escritura se sigue consignando otras donaciones, una de 243.012  maravedíes de principal y 17. 358 de renta anual y otro de 272.460 maravedíes  y 18.364 de renta.

Parece que el mecenazgo como patronos del segundo conde de Castrillo y Haro y   Avellaneda no respetó lo prometido, poco a poco estas aportaciones fueron reduciéndose y/o desapareciendo, ya que no vuelven a aparecer en los documentos y  lo prometido no se cumplió.

Para la construcción hubo otras donaciones, las del Duque de Osuna, (Señor de Gumiel de Izan, pueblo próximo a Aranda),  el Marqués de Villafranca, la Condesa de Valencia, así como las dotes de dos nuevas monjas, las hermanas Doña Rafaela y Doña Jerónima, Hijas del Duque de Estrada. 

El 20 de mayo de 1663, se puso la primera piedra, terminando la obra en 1666. La obra costó 55.600 reales…    Firman el documento  en esta fecha 29 madres

Este monasterio de gran envergadura, seguía su rutina diaria, y apenas tenía contacto con el exterior.  Era un monasterio que tiene su claustro, sus celdas, su iglesia… Se practicaban  normas muy estrictas, llevan  una vida muy austera,  dedicada a la oración y las labores que las permita su  autosubsistencia y autoabastecimiento, intentaban comprar lo mínimo posible del exterior”, explica Sánchez.

Después de estos datos iniciales, durante 142 años posteriores,  parece que la vida transcurre en una cierta normalidad y monotonía conventual, apenas hay documentación  en la que se describan hechos significativos o destacados del monasterio y sus moradoras. 

El enclave religioso también sufrió los destrozos  de invasiones y guerras que se fueron sucediendo a lo largo de los años de su existencia.

Llegamos al siglo XIX,  la invasión francesa y la Guerra de la Independencia  En el libro de Cuentas Generales del Monasterio de 1806, siendo Gobernadora Doña Gertrudis de Navas se da cuenta de algunos trágicos y desgraciados hechos sucedidos en estos años.

Aranda fue paso obligado de las guarniciones francesas, así como  importante punto de retaguardia de tropas y centro de información de guerrilleros. 

El pueblo se encontraba fuertemente dividido en dos  bandos con respecto al comienzo de la invasión francesa, ya que inicialmente se pensaba que únicamente era un paso obligado hacia Portugal de los “cien mil hijos de San Luis” y sería positivo para los movimientos reformistas en España. 

 El día 6 de junio de1808, Napoleón proclama Rey de España a José Bonaparte, con este motivo, el día 5,  los ayuntamientos por donde ha de pasar el cortejo, reciben  la información a fin de que sea recibido con aplausos y que se prevengan fiestas con toda  la magnificencia posible,  para merecer su benevolencia y granjearse su amor.

El 19 de Julio las tropas francesas sufren su primera derrota en Bailén, José I decide dejar Madrid y retirarse hacia Burgos, pasa por Aranda el 7 de agosto y con él se retira la guarnición  que se había establecido en la Villa. 

Poco dura esta alegría, pues se conoce la noticia de que es el mismo Napoleón el que ha entrado en España;  a su paso las tropas que le acompañan, ansiosas de venganza y de botín , arrasan, saquean  e incendian los pueblos por los que pasan.

Muchos vecinos, ante el terror reinante y las noticias que llegan,  deciden abandonar el pueblo y sus propiedades, lo mismo y con  más motivo, sucede con los religiosos y clero del pueblo.

La crónica que se conserva en el monasterio nos relata lo siguiente: “Los justos temores que concibió la Comunidad en la entrada de los franceses en esta Villa, en padecer algunas incomodidades y atropellamientos, como se había verificado en algunos otros pueblos, las movió a abandonar el monasterio a la una de la noche del día 13 de noviembre de 1808, y de tomar cada una  el camino y destino que les pareció más acertado y conveniente (todas a pie y por agua y barros), por no permitir la falta de recursos marchar todas unidas y a un mismo punto ni llevar los enseres, así de la Comunidad, como de las particulares, a causa, ya de la falta de caballerías, y a la aceleración de la marcha, por haberse extendido en aquella noche la voz de que estaban próximos los franceses, e iban a entrar en esta Villa.

Cita a continuación las señoras que componían la Comunidad,  junto con la abadesa Doña Rosa Huerta, se citan con sus nombres y apellidos 12 monjas.  La abadesa y una monja, por  sus achaques e indisposiciones, no pudieron salir  de la Villa. La abadesa, después de haber sido malherida y maltratada, pudo salvarse por haberla dado por muerta, refugiándose posteriormente en Roa de Duero, donde posteriormente murió.

Explica con detalle los diferentes pueblos o lugares en los que cada pudo dirigirse en los que fueron acogidas, principalmente en casas de parientes en diferentes pueblos de la zona. Algunas de ellas murieron fuera del monasterio, otras pudieron regresar cuando fueron expulsados los franceses.

Al día siguiente de la huida general, llegan las primeras tropas francesas, tomando como acuartelamientos los diferentes conventos que habían sido abandonados, en concreto, San Francisco, Santi Spiritiu, las Bernardas y San Antonio y como almacenes todas las ermitas.

El convento de las Bernardas queda transformado en fábrica de pan.

Napoleón entra en Aranda el 23 de noviembre, pernotando en la casa palacio de los Berdugo. 

Los conventos son saqueados, así como las iglesias de Santa María y de San Juan, profanando sus pertenencias, quemando públicamente los libros sagrados y parroquiales.

El 22 de diciembre es quemado el convento de San Francisco.

Todos estos hechos son aprovechados por algunos ciudadanos para provocar revanchas  y altercados, convirtiéndose la zona en casi una guerra civil, ya que anteriormente había habido enconados opositores o simpatizantes de los franceses.

 Con la llegada de 1809, se va produciendo una tensa y relativa paz, por lo que aquellos civiles que habían huido,  comenzaron a retornar, ante la promesa de que no se iban a tomar represalias contra ellos. Al regreso pudieron comprobar los enormes destrozos que se habían causado., 

Se citan robos, saqueos y destrozos  ocasionados  en algunos pueblos  de los alrededores, como Fresnillo, Gumiel  de  Hizán;  como muestra de lo que ocurrió en otros pueblos de la comarca, sus iglesias  y monasterios.  Se  llevaron cálices, custodias, incensarios, sagrarios, coronas de la Virgen, cofres, campanas  y todas las alhajas que pudieron encontrar. 

 A esto se juntaron los impuestos exigidos, incluso bajo pena de muerte,  según dice D. Francisco Palacios, unas veces por los franceses  y otras de los guerrilleros que estaban por los alrededores.

Cita como ejemplo de esta situación lo producido en Fresnillo de Dueñas el día de Pentecostés de 1810, cuando se recibe un ultimátum de que,  si en el espacio de tres días no se paga la cantidad pedida, se pasará por las armas a todo el pueblo. Reunido en la plaza el pueblo, al no poder juntar  entre todos esa cantidad,  se pide ayuda al párroco D. Francisco López, quien consigue reunir 1.100 reales, consiguiendo solucionar momentáneamente aquella apremiante y angustiosa situación.  

La guerrilla fue una auténtica pesadilla para las tropas francesas. Son nombres destacados  de guerrilleros de estas tierras  Juan Martín Díaz “El Empecinado”, natural de Castrillo de Duero,  D. Jerónimo Merino, conocido como “El Cura Merino”, natural de Villoviado, (pueblo cercano a Lerma), Don Segundo Antonio Berdugo, del propio Aranda,  y otros muchos guerrilleros anónimos  que con su lucha y vida ofrecieron una gran resistencia a los invasores.

Con relación al tema de los franceses y la guerrilla hay una leyenda que se desarrolla en la Torca de Fuencaliente, que ahora no viene al caso.

Cuando en 1813, los franceses abandonan definitivamente España,  el saldo para Aranda y sus ciudadanos es dramático , tanto en vidas como en destrozo del patrimonio monumental  histórico artístico, algunos edificios quedaron destruidos e irrecuperables,  otros se pudieron salvar, reconstruyendo y restaurando a costa de  grandes sacrificios  y dineros. 

El convento fue ocupado, usurpado y expoliado de inmediato, al igual que otros monasterios e iglesias; como se  ha dicho,  se usó como  horno de pan para las tropas francesas. Afortunadamente el destrozo no debió ser grande, de tal manera que las monjas que quedaron,  pudieron volver a ocuparlo y poner en funcionamiento, retornando  a la vida conventual, una vez que finalizó la invasión. 

Terminada la ocupación, la abadesa de las Huelgas, nombró  el 20 de noviembre a Doña  Gertrudis García de Navas,  procuradora del monasterio para que tomase posesión del mismo,  repararlo y habilitarlo y que,  mientras tanto,  reuniera a las religiosas desperdigadas,  donde juzgara más conveniente.  La posesión se tomó el 22 de diciembre de 1813  con mucha alegría, comenzando la rehabilitación. .

Dada la situación de abandono, ruina y desastre en que se encontraba y a la obra de recuperación que se hizo, a esta abadesa se la considera la “segunda Fundadora”

El 24 de enero  de 1814, cinco son las monjas que están de nuevo reunidas en una casa de la calle Empedrada que se había  alquilado, dos más se reunirían con posterioridad y las tres restantes habían fallecido.

Comenzaron las obras. Se tiran los dos hornos que los franceses habían construido en la iglesia, reparándose los coros y construyendo  cuatro  celdas, así como buena parte de la tapia. El resto se fue rehabilitando poco a poco y con posterioridad de la mejor forma posible. 

Durante el tiempo que duran las obras, Las Bernardas  siguen cumpliendo sus deberes religiosos, tratan de seguir su anterior vida conventual según las circunstancias lo permiten, se cumple escrupulosamente la clausura, autorizando a entrar en ella solamente a  aquellas personas  indispensables; las monjas salen únicamente para confesarse, oir misa y comulgar a alguna parroquia cercana. 

La manutención de las religiosas se efectúa con la colaboración de los Mayordomos del monasterio,  que caritativamente reúnen y envían los alimentos a la casa, pero al no disponer de espacio para almacenarlos, acuerdan  con la superiora Doña Gertrudis  y unanimidad de la comunidad,  que se envíe sólo lo del día.

Tras muchos esfuerzos realizados  se consagra nuevamente la iglesia el  2 de abril, celebrándolo con repique de campanas,  gran júbilo y asistencia del pueblo.  Dice: “ y a pesar de que no se hallaban más que cinco reunidas, celebraron las cuatro que tenían salud los Oficios de Semana Santa con la solemnidad acostumbrada”. 

El 12 de junio ya se encuentra el monasterio apto para albergar nuevamente  a  las religiosas, lo que no ocurrió a al  resto de conventos de Aranda, ya que hay un escrito del  27 de noviembre en el que se dice:” Todavía las comunidades de Santo Domingo, San Francisco y las monjas de San Antonio, viven en casas particulares sin haberse atrevido hasta la actualidad a principiar las reparaciones  en sus respectivos conventos “. 

A  Doña Gertrudis la sustituye su  hermana  Doña Escolástica Vicenta de Navas, que muere en 1833, volviendo  a ser nombrada superiora Doña Gertrudis. 

Por los libros de cuentas se sabe que en el siglo XIX poseían varias tierras  en 15 pueblos en los alrededores de Aranda.

 Para la reparación  del Convento tras la ocupación francesa, tuvieron que vender varias, de 1815 a 1830 al menos tres por 4440, 9000 y 8000 reales.

El 10 de noviembre de 1815, hacen una petición a la Abadesa de las Huelgas de revisión de las cargas que pesaban sobre el convento, nombra las muchas misas que  se dicen por diferentes personas o benefactores y lo que hay  que pagar por ellas, dice que están muy reducidas sus facultades por haberse deshecho de muchas fincas, ya para reparar el monasterio que quedó derrotado e inhabitable y otros artículos para la subsistencia, no pudiendo admitir a más  monjas. 

 En  la respuesta del 19 de noviembre de 1815, se suspende la celebración de las misas  hasta nueva revisión de la obligación o no.

En el Diccionario de Madoz (1845-1850) se afirma que el monasterio “es de buena fábrica, aunque deteriorado en lo interior, conteniendo 5 religiosas con su capellán”.

En esto llegamos a 1836 en el que D. Juan Álvarez  Méndez (Mendizábal)  anuncia  la supresión de las órdenes religiosas y la desamortización de sus bienes, mediante la expropiación de las tierras eclesiásticas y su subasta pública.

Las Bernardas,  con su monasterio en precario y recién  reconstruido, se enfrentan  a la incautación de las posesiones que tenían.  Las propiedades se encontraban en  Aranda, Castrillo de la Vega, Villalba, Santa Cruz de Salceda, Fresnillo de las Dueñas, Campillo de Aranda, Torresandino, Roa, Nava de Roa, Villaescusa de Roa, Zazuar, Gumiel del Mercado, Fuentelcesped, Valtiendas y otros lugares de menor entidad.

Con los decretos de desamortización  se da un golpe mortal a las órdenes religiosas, en concreto en Aranda se abandonan de forma definitiva los conventos de Santi Spíritu, San Francisco y San Antonio. 

 Siguió la ruina  con las guerras carlistas que se desarrollaron a lo largo del siglo XIX,  debido a la fuerte polarización y  enfrentamiento entre principios políticos que había entre unos y otros en  el pueblo de Aranda .

Durante estos años las monjas van viviendo de las pequeñas rentas que todavía les producen algunas de sus propiedades, ya que la confiscación no se produce inmediatamente, es más, venden algunas posesiones antes de la ejecución de la desamortización.

En el año 1851, el gobierno firma un acuerdo con la Santa Sede, autorizando  por los  perjuicios  sufridos con la desamortización a la enseñanza. Las monjas se acogen como una tabla de salvación a esta disposición  e intentan con todos los medios crear un colegio para señoritas en el convento.

El obispo  D. Pedro Lagüera, no da facilidades,  ya que no era partidario,  por lo que se dirigen a la superiora de las Huelgas, informándola de las dificultades y trámites que se las exige y pidiendo que mediara para salvar estos obstáculos. 

El  Sr. Obispo, tampoco era partidario de que el monasterio de las Huelgas  siguiera rigiendo los conventos filiales, por lo que la relación entre ambos es tensa.   La cuestión queda solucionada el 17 de julio de 1864 con la licencia que concede la superiora de las Huelgas en la que se firman los estatutos para la enseñanza interna, mediopensionista y externa.

En los 15 capítulos de los estatutos hay datos curiosos como la calidad y cantidad de ropa que las  internas deben llevar consigo, así como otro tipo de enseres. Se recoge el horario a seguir: levantarse en verano a las 5,30 h.  y  en invierno a las 6,30, clases de 9 a 12  y de 2 a 5 , rosario y cena a las 8,30 h. y seguidamente retirarse a descansar;  las asignaturas  se detallan  incluyendo títulos de los libros  y autores; al término  de los capítulos  se insertan las oraciones  con las que se bendecirá la mesa, antes y después de las comidas.

Firma dando su autorización la Abadesa  de las Huelgas  Doña Bernarda Tagle de Quevedo.

En 1868 el Obispo de Osma pretende unirlas  con las monjas Concepcionistas de Peñaranda, a lo que se oponen.  Las monjas de Santa María del Valle no quieren esta unión. 

El 1 de Febrero de 1874, se recibe carta en el monasterio,  de la gobernadora de las Huelgas, Doña  Pilar Ugarte, notificando que,  por orden del Cardenal Arzobispo de Valladolid, el convento arandino pasaba en adelante  a depender del obispado de Osma, recordándolas su voto de obediencia.  La  Superiora de Las Huelgas acepta por obediencia la resolución adoptada. Así  terminan 685 años de filiación de las Huelgas. 

En 1904, una peste se ceba sobre el país y Aranda la padece igualmente,  seguro que las monjas también la padecieron. Don Silverio Velasco, cuenta que las muchas iglesias y ermitas se veían incapaces de recibir  tantos cadáveres, por lo que hubo que habilitar cementerios. Estima que pudieron morir en Aranda mil personas e incluso desaparecieron familias enteras.

A finales del siglo XIX se produce la pérdida de las colonias españolas y a lo largo del Siglo XX, se suceden una serie de hechos históricos a los cuales Aranda no es ajeno, como la primera Guerra Mundial, la dictadura de Primo de Rivera, la instauración de la República y especialmente trágica fue la guerra civil. Aranda, desde el comienzo,  prácticamente se encontró en la zona llamada nacional, por lo que el monasterio  no sufre daños importantes. 

La superiora en este momento es Doña  Presentación. Al igual que el resto del pueblo y los españoles, se pasa necesidad, hambre y estrecheces, lo que obliga a vender algunas pertenencias para poder subsistir, a pesar de que  las monjas ejercen de cocineras, y el convento hace de comedor para una  parte de las tropas acuarteladas en el pueblo.

Los primeros años de la posguerra fueron tan duros y difíciles como habían sido los anteriores.

El monasterio de la Dehesilla, tras tantas guerras y el tiempo  ha ido sufriendo un gran deterioro que hace difícil y costosa la restauración. El hecho de que se encuentra en el  mismo centro de la población, causa molestias y crea dificultades para  guardar la clausura,  no siendo bien visto por el Obispo de Osma, D. Tomás Gutiérrez, por lo que propone el cambio de ubicación.  Se propone la parcelación para su venta , con la autorización de la abadesa  Doña Lourdes García, con el fin de  edificar un nuevo monasterio fuera de la población. Esta resolución  fue aprobada por Roma en 1943. El ayuntamiento autoriza la parcelación y el derribo  del convento el 13 de diciembre.

Las monjas abandonaron el monasterio  el 6 de octubre de 1947.  

Mientras dura la construcción viven en alquiler en el Montecillo  en  la casa que tiene D. Melchor Arnáiz, pero 23 días después, de madrugada, se produce un incendio en la finca de al lado, que prende en la casa que ocupan las monjas. Muchas de sus pertenencias  se queman, Ntra. Señora del Valle, esta vez, se salva de las llamas.

Las monjas son recogidas por la familia Lete en su casa  de la Quinta Julia, y por la tarde, una vez acondicionado lo imprescindible, vuelven al convento de la Dehesilla. 

La situación en la que queda es trágica e inhabitable, por lo que hay que buscar  un nuevo lugar para la comunidad, mientras se construye el nuevo edificio.  

Tras diversos intentos, son aceptadas en el monasterio cisterciense  de Santa Julia y San Quirico de  Valladolid, trasladándose el 23 de diciembre de 1947´.  En Valladolid permanecen 3 años. 

 En el monasterio quedan los huesos de sus benefactoras, superioras y monjas que han ido falleciendo a lo largo de su historia desde su fundación en Fuencaliente. 

El monasterio derribado lo divide el ayuntamiento en 11 parcelas, algunas de las cuales se destina a plaza pública.

Dos monjas quedan en Aranda para gestionar  los detalles del nuevo convento, la compra del terreno de propiedad de  Doña María Martín de 11.400 metros cuadrados,  que estaba situado en la carretera de Salas (Hoy, Calle Santiago) .

 Los materiales de derribo del antiguo monasterio se utilizaron,  los que fueron posibles,  en el nuevo.   La piedra se empleó en parte para construir la plaza de toros y desaparecieron  diversos elementos artísticos del viejo monasterio.

 El proyecto que realizó D. José María de la Vega,  poco tuvo que ver con el edificio que al final se realizó. 

Las obras se retrasan, lo que crea impaciencia  en las monjas;  cuando el estado de las obras permite habitarlo,  aún sin terminar, piden autorización al Obispo de Osma para regresar. Concedido,  regresan acompañadas por 6 religiosas del  convento  de Santa Julia y San Quirico de  Valladolid, para ayudarlas a instalarse en su nueva casa. 

Cuando llegan a la estación de Aranda, el 4 de enero de 1951, son recibidas con gran alegría.  Salen a recibirlas  el alcalde, D, Pedro Sanz Abad, sus  familiares, las personas que las ayudaron, como Doña Josefina Arias de  Miranda y gente del pueblo,  

Todos juntos se dirigieron a la Iglesia de Santa María, donde entre repique de campanas, espera parte del pueblo, para darles  la bienvenida, cantando un solemne “Te Deum”  de acción de gracias.

 Al tomar posesión del convento la abadesa  Doña María Jesús Barrientos ve  la cruda realidad, que no reúne las condiciones de habitabilidad, que el invierno está encima, que hay muchas humedades, que la iglesia no está hecha, etc, a pesar de todo las monjas están contentas de haber vuelto a su comunidad.

A los 8 días de su llegada, fallecen dos  antiguas abadesas,  Doña Presentación García  y dos días después, Doña  Lutgarda  Palacios. Como no está acondicionado el monasterio, son enterradas en el municipal, posteriormente sus restos serán trasladados al monasterio.  

Poco a poco las obras se fueron terminando. Al  año del regreso, se cambió el nombre al monasterio poniéndolo bajo la advocación de Virgen de Fátima, esto duró unos años hasta que se decidió que recuperara su antigua denominación de Ntra. Señora del  Valle, como quiso su fundadora Doña Urraca.

Como puede deducirse de lo explicado anteriormente,  la comunidad pasó por trances muy difíciles que las  hicieron pasar  muchas necesidades, incluso hambre, ya que el monasterio no recibía ninguna ayuda, teniendo que vivir  de sus propios medios; a esto se añadió más de una vez  el engaño de gente aprovechada y de mal corazón. 

Cuando el monasterio tomó  el nombre de VirgenFátima y la comunidad tuvo que hacer frente a la terminación del convento, se ven obligadas a vender parte de sus pertenencias para poder comer, entre ellas la Virgen de Ntra. Sra. Del Valle  del siglo XVI, talla de valor,  codiciada por anticuarios,  donada por la familia Avellaneda, que habían traído de Fuencaliente. 

Al tomar nuevamente el monasterio el nombre de su fundación, quisieron recuperar la imagen que habían vendido, lavar su conciencia de culpabilidad  y subsanar el error que habían cometido.

 Encargaron de su localización a D. Cayo Moreno, párroco de Santo Domingo, quién se pone en contacto con el anticuario que la había adquirido.   Se informa de que ha sufrido un largo peregrinaje,  que fue comprada por un convento de Córdoba, desde allí pasó a otro convento de la misma orden de Ciudad Real y desde aquí a una casa de ejercicios de Carabanchel (Madrid).  

 Localizada, los últimos propietarios no ponen impedimentos, solamente que se les dé a cambio una  Virgen Inmaculada, imagen que compra D. Cayo. 

La comunidad la recibe con gran alegría y satisfacción. 

El diseño inicial de la iglesia del arquitecto Sr. Vega fue modificado;  las obras comenzaron el 25 de agosto de 1964. Para su construcción, recibiendo  importantes donativos  de conocidas familias arandinas. Se inaugura  el 9 de mayo de 1965. Al fin se considera el convento  terminado.

La iglesia o capilla, con una capacidad para 80 personas, sirvió como iglesia parroquial durante año y medio, hasta que se terminó de construir  el primer templo provisional  de Santa Catalina, situado en el barrio del mismo nombre. En ese momento era abadesa  la Madre María Providencia Casas Hons y capellán y párroco de Santa Catalina , Don Felipe Ontoso Molero .

 En el año 1987, solamente había  cinco  monjas  y dos novicias,  otras cuatro habían ido a Ampudia (Palencia) para realizar una nueva fundación.

Para su subsistencia, a lo largo de los años,  se ocuparon de la confección de ropas, realización de bordados, lavado y planchado de prendas  de las parroquias de Aranda y de parte de la comarca, fabricación de obleas;  posteriormente la sala de costura se transformó en sala de encuadernación.  

La disminución de religiosas, fue causa de que  en 2001 las últimas monjas se trasladasen al monasterio riojano de Santo Domingo de Calzada, de la misma orden, siendo derribado el convento e iglesia para construir viviendas.

Desde la fundación por Doña Urraca, hasta el año de 1973, se da cuenta de los nombres de 31 abadesas, de estas son 11 de las abadesas de Fuencaliente de las que se aporta algún dato.

Esta es parte de la historia y vicisitudes que vivieron las madres Bernardas, del monasterio de Santa María del Valle fundado en el año 1175, en Fuencaliente del Burgo por Doña Urraca, trasladado a Aranda de Duero, donde vivieron en dos conventos diferentes. 

Finalmente abandonaron Aranda en 2001, uniéndose a las religiosas cistercienses de la Anunciación  de Ntra. Sra. en Santo Domingo de la Calzada (Logroño).

Esta es mi aportación,  como contribución a la celebración y  homenaje a nuestros antepasados que, con gran sacrificio,  consiguieron  comprar y llegar a ser propietarios de las  tierras que  durante siglos,  habían tenido que trabajar como colonos, en condiciones  casi de esclavitud en el llamado Coto Redondo   (1924-2024), compra que hicieron todos los habitantes del  municipio de Fuentearmegil, formado por los pueblos de Fuentearmegil, Fuencaliente, Santervás y Zayuelas. 

 En Fuencaliente del Burgo, fue  el  lugar en el que se fundó el monasterio de Ntra. Sra. del Valle. 

En este escrito hay varios motivos por los que siento que forman parte  de mi historia personal; Fuencaliente es mi pueblo de nacimiento, Aranda es la Villa a la que emigraron mis padres allá en la década de los 60, donde trabajaron en las tierras de algunos benefactores del convento, vivieron  en el barrio  donde se encontraba el  último monasterio de las Bernardas y  pertenecían a la parroquia de Santa Catalina  y  finalmente , con el el sacerdote D. Cayo, que consiguió recuperara la imagen de la Virgen del Valle y realizó una dilatada  y extensa obra social en Aranda de Duero,  me unían vínculos familiares.

Un comentario

Deja un comentario

Tu dirección de correo electrónico no será publicada. Los campos obligatorios están marcados con *

Este sitio usa Akismet para reducir el spam. Aprende cómo se procesan los datos de tus comentarios.